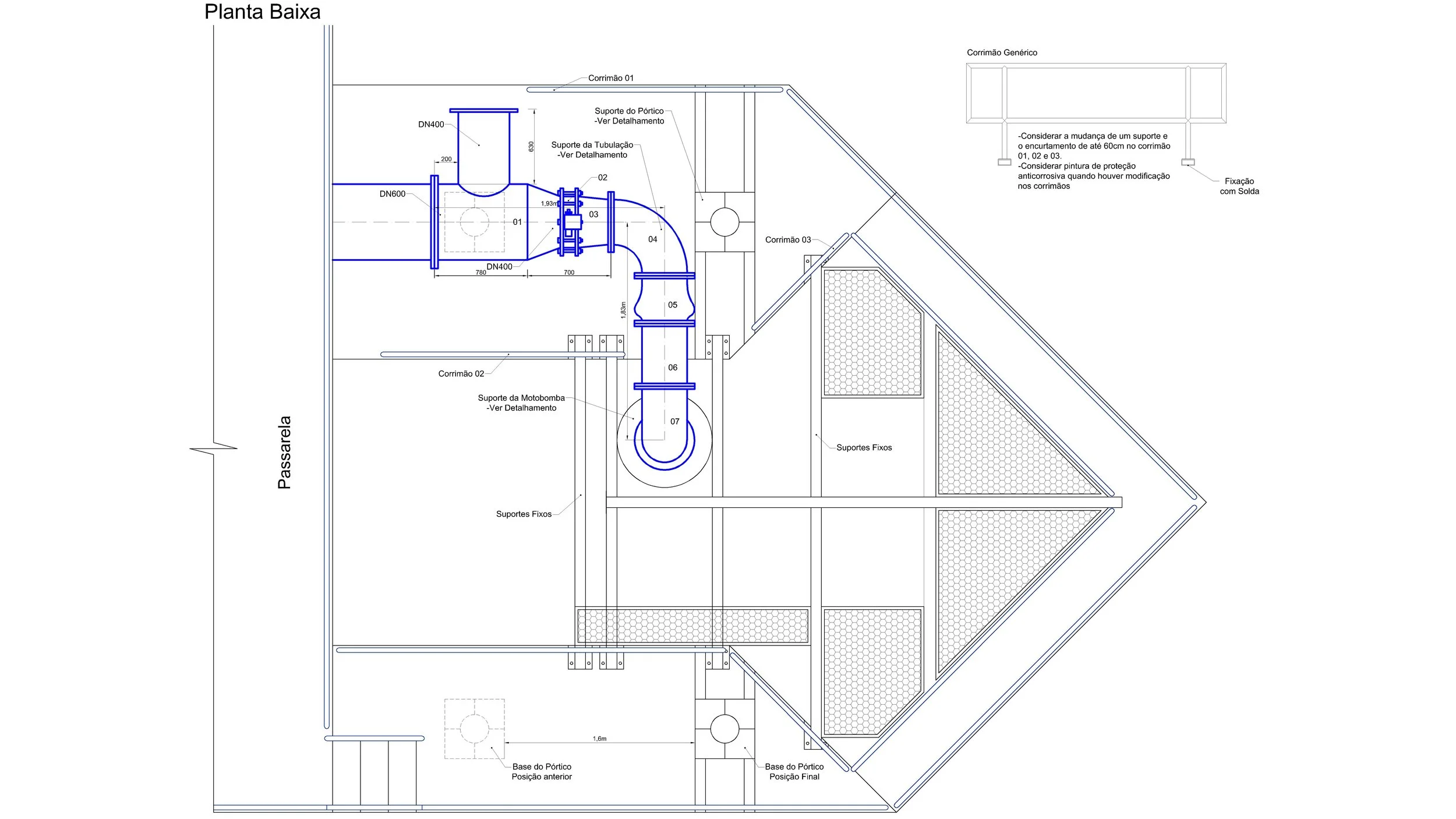
Overview:

Retrofit of a floating raw-water intake unit to meet increased demand. Decommissioned the old pumps and adapted the platform to install a submersible pump repurposed from another application. Scope included mechanical adaptations, ballast adjustments, supports and commissioning.

Challenges:

  • Verified platform weight and adjusted ballast to maintain freeboard and trim.

  • Despite a VFD, the operating point remained off the BEP, lowering efficiency.

Outcome and lessons learn:

  • Pre-design buoyancy/stability checks are mandatory to avoid overstressing the pontoon and moorings.

  • Local fabrication capability informed the design (materials, welding, fittings), improving buildability and turnaround.

Previous
Previous

WWTS - Aeration system

Next
Next

WTS - Discharge Valves Rehabilitation